HK-5W擺動式焊接小車是自動裝置,一次焊接可以獲得較寬的焊縫。擺動速度、擺動角度、中心偏移位置、和左右停留時間均可調整,適合各種不同規格的焊道。非焊接狀態下的小車行走速度為最大值(1900mm/min)。

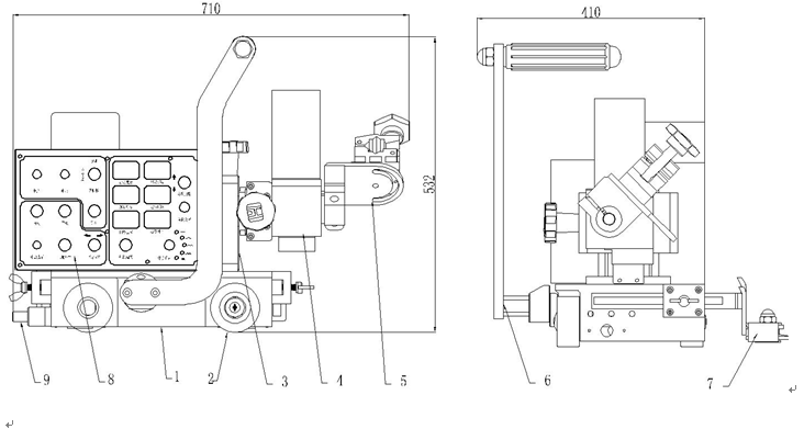
HK-5W由小車本體、X-Y滑塊、導向輪、焊槍把手、焊槍擺動器、磁控手柄,控制箱等部件組成。
1)小車本體部分:是整臺機器的骨架,是其它部分的載體。
2)驅動部分:是驅動小車的裝置,以四個橡膠輪,錐齒輪,鏈條,鏈輪組成。
3)X-Y滑塊:是調節焊槍位置的裝置,焊接當中可以將焊槍進行上下左右的微調。
4)焊槍擺動器:帶動焊槍進行擺動模式的焊接。
5)焊槍夾持器:是焊槍的夾持裝置,可以方便地進行維修、調整和焊槍的拆卸。
6)磁控手柄:方便小車的安裝和移動,安裝有永久磁鐵,避免小車脫離焊接線的現象。
7)控制箱:可以調節小車的所有動作,詳細內容參考“控制面板說明”
8)感應停止開關:焊接到工件末端時被觸動后小車自動停止工作。
9)導向輪:沿著母材面滾動,引導準確焊接部位的裝置。
10) 焊槍
主要技術參數
|
1.外形尺寸 |
430×280×290 mm |
|
|
2.機器重量 |
12Kg(包括擺動器) |
|
|
3.輸入電壓 |
AC220V 50HZ |
|
|
4.擺動電機 |
DC24V |
|
|
5.驅動方式 |
橡膠輪四輪驅動 |
|
|
6.焊接速度 |
150~1900mm/min |
|
|
7.焊槍調 整范圍 |
上下 |
40mm |
|
前后 |
40mm |
|
|
作業角 |
±45° |
|
|
進行角 |
10° |
|
|
8.擺動參數 |
左右停留時間 |
0~2.5S |
|
偏移距離設置 |
0~±8° |
|
|
擺動速度 |
0~100 |
|
|
擺動角度 |
±15° |
|
|
9.擺動模式選擇 |
|
|
焊接參數
|
焊絲直徑 焊接參數 |
Φ1.2mm |
Φ1.4mm |
Φ1.6mm |
|
|
電流(A) |
平焊 |
120-300 |
150-380 |
180-430 |
|
平角焊 |
120-280 |
150-320 |
180-380 |
|
|
橫焊 |
120-280 |
150-300 |
180-330 |
|
|
電壓(U) |
1) U=14+0.051 2) 300A以下時U=0.041+16±1.50 3) 300A以上時U=0.041+20±2.0 |
|||
|
噴嘴與工件間的距離(H) |
1)200A以下時 H=10~15mm 2)200~350A時 H=15~20mm 3)350~500A時 H=20~25mm |
|||
|
焊絲伸出長度(L) |
一般取焊絲直徑的10倍左右,即L=10d |
|||
裝箱清單
將裝置小心地從包裝箱中取出。首先,檢查各部件以確認其完整。各包裝組件中包含下列零部件:
|
1.主機 |
1臺 |
|
2.電源線(220V/20M) |
1根 |
|
3.保險絲(220V/2A) |
2只 |
|
4.內六角扳手 |
1套 |
|
5.連接轉換線(500mm) |
1根 |
|
5.說明書,合格證 |
各1份 |